帮我找房
崇文广渠门 雍贵整层1200平仅租5元 临近通正鼎新富瑞大厦
18万元/月

5元/㎡/天

1200㎡
建筑面积
140~280个
推荐工位数
精装修
装修

办公楼盘:雍贵中心

楼盘类型:标准写字楼

楼盘位置:东城区·广渠门·广渠门内大街41号

交通地铁:距离地铁7号线广渠门内距离出口500米

看房时间:

加我微信

基本信息
  • 格:
    5元/㎡/天
  • 圈:
  • 租:
    18万元/月
  • 积:
    1200
  • 型:
    甲级写字楼
  • 层:
    高区/共16层 共层
  • 修:
    精装修
  • 使率:
    70.0%%
  • 数:
    140~280个
  • 册:
    可注册
  • 盘:
    雍贵中心
  • 割:
    可分割,最小分割面积100m²
  • 址:
    东城区·广渠门·广渠门内大街41号
  • 费:
    26.00元/㎡/天
配套设施
  • 押3付3
详细信息
1、价 格:5元/㎡/天
2、面 积:1200㎡
3、位 置:东二环崇文广渠门核心地段,商圈气氛浓厚!
4、交 通:地铁7号线5号线,公交贯穿多线,交通便利!
房源信息
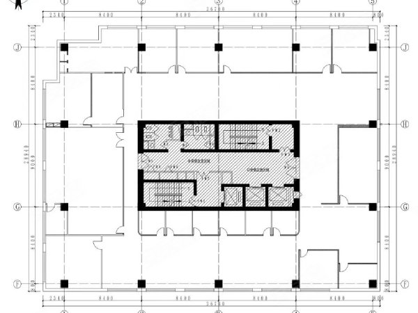
1、装修状况:老板间、财务室。房间精装修,布局合理,户型方正,,,高层采光好,视野无遮挡,省去您二次装修的费用、省时、省力
2、看房时间:有钥匙,随时看房。
3、周边配套:办公环境优越,周边办公气氛浓厚、有各大、餐饮、娱乐、休闲等等。
房源照片
  • 小区所在城市
  • 详细地址
  • 期望租金
    元/月
  • 出租方式
  • 称呼
  • 图形验证码
  • 手机号码
    发送验证码
  • 手机验证码
  • 备注(选填)