帮我找房
现房出售1.04万有院 地上停车位 办公独栋 燃气
3.89

3.74万/㎡

10400㎡
建筑面积
1560~3120个
推荐工位数
精装修
装修

办公楼盘:金茂绿创中心

楼盘类型:标准写字楼

楼盘位置:朝阳区·来广营·来广营西路

交通地铁:距离地铁14号线来广营距离出口米587

看房时间:

加我微信

基本信息
  • 价:
    3.89万元
  • 质:
    二手写字楼
  • 价:
    3.74万/㎡
  • 积:
    10400
  • 型:
    甲级写字楼
  • 层:
    低区/共7层 共层
  • 修:
    精装修
  • 使率:
    90.0%
  • 数:
    1560~3120个
  • 册:
    可注册
  • 盘:
    金茂绿创中心
  • 割:
    可分割
  • 址:
    朝阳区·来广营·来广营西路
  • 费:
    10.00元/㎡/天
配套设施
房源概况
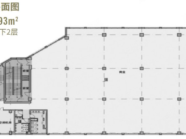
总占地:约2800㎡
总建面:约13953.31㎡(其中产权10411.86㎡)
项目位置:大望京商圈(来广营西路)
面积:地下一层精装食堂、、屋顶楼台。
环保能源:屋顶放置光伏发电板、改造成屋顶
使用率:层约66%,2-7层约67%
楼高:30米
层数:地上7层,地下2层
标准层面积:约1585㎡
柱距:8.3-9.3米
层高:层5.1米,2-7层4米,地下一层4.8米,地下二层3.6米
电梯品牌:上海三菱电梯
电梯数量:3部(含一部货梯)
空调:毛细管网+风机盘管,每层独立控制
停车位:地下25个产权车位,地上15个临停车位
房源照片
员工备案号:1008611
员工备案号:1008612
  • 小区所在城市
  • 详细地址
  • 期望租金
    元/月
  • 出租方式
  • 称呼
  • 图形验证码
  • 手机号码
    发送验证码
  • 手机验证码
  • 备注(选填)